| Objektart | Einfamilienhaus |
| Zimmer | 6 |
| Wohnfläche | ca. 193 m² |
| Stockwerk | 4 Etagen - EG, 1. OG, 2. OG, DG |
| Baujahr | 16. Jh., letzte Restaurierung um 1965 |
| Badezimmer | Bad/Du im EG, WC im 1. OG , Bad/WC im 2. OG |
| Heizung | Fernwärme |
| Besonderes | kulturhistorisches Schmuckstück |
Das «Rote Haus» – ein Stück Werdenberger Geschichte sucht neue Eigentümer
Ein Wahrzeichen am Eingang des historischen Städtlis Werdenberg: das Rote Haus, wurde in der zweiten Hälfte des 16. Jahrhunderts errichtet und im Laufe der Zeit mehrfach sorgfältig erweitert und restauriert. Es ist zudem bekannt als Geburtshaus des Schweizer Staatswissenschaftlers und Philosophen Carl Hilty. Mit seiner reich dekorierten Fassade, der traditionellen Strickbauweise und seiner markanten roten Farbgebung zählt es zu den eindrucksvollsten Gebäuden des Städtlis.
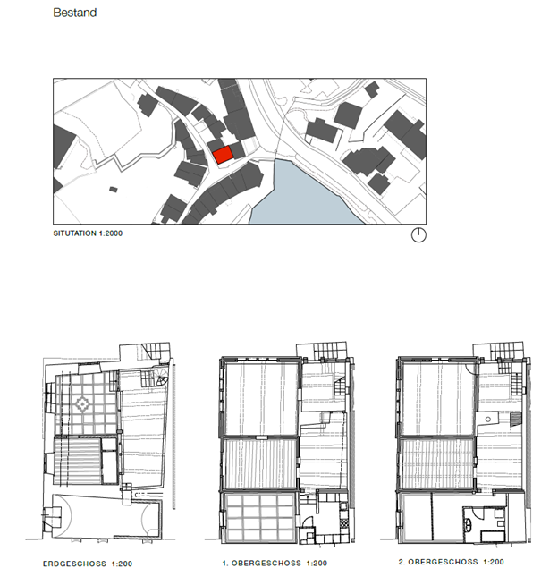
Die Liegenschaft steht auf einem 153 m² grossen Grundstück, erstreckt sich über vier Geschosse und verfügt insgesamt über sechs Zimmer sowie 2 Gewerberäume.
Der Haupteingang befindet sich im 1. Obergeschoss und kann über die Treppe an der linken Gebäudeseite erreicht werden. Dieser führt direkt ins Treppenhaus und von dort in einen grossen Raum mit einem offenen Kamin. Dahinter befindet sich die ehemalige Küche, welche bereits entfernt wurde, sowie eine Gäste-Toilette. Daneben liegen drei grosszügige und wunderschöne Altbau-Zimmer mit Kassettentäfer, Echtholzparkett, Altholz-Dielenböden und Blick auf die Hauptgasse.
Im 2. Obergeschoss befinden sich zwei weitere grosse Zimmer mit vielen historischen Elementen wie traditionellen Butzenscheiben und verzierten Kassettendecken. Die grosszügige Diele führt in den hinteren Teil des Hauses, wo sich das Badezimmer mit Badewanne und Toilette sowie eine Ankleide befinden. Über die Treppe gelangt man ins Dachgeschoss, welches einen zusätzlichen Raum bietet.
Das Erdgeschoss auf dem unteren Strassenniveau umfasst einen grossen Keller sowie zwei Gewerberäume mit separater Toilette und Dusche. Diese eignen sich ideal als Atelier, Büro oder Verkaufsfläche und sind sowohl für Eigennutzer als auch für eine Vermietung attraktiv. Ein separater Eingang bietet Flexibilität bei der Nutzung. Der separate Kellerraum an der rechten Gebäudeseite wurde von der Politischen Gemeinde Grabs 2025 zu einer öffentlichen Toilette umgebaut. Dank der massiven Mauern besteht im Haus jedoch keinerlei Beeinträchtigung.
Wie alle Gebäude im Werdenberger Städtli steht auch das Rote Haus unter Denkmalschutz, was seinen kulturellen Wert zusätzlich unterstreicht. Renovationen sind im Rahmen der behördlichen Vorgaben möglich und bieten engagierten Käufern die Gelegenheit, ein Stück Schweizer Geschichte zu bewahren und individuell weiterzuführen. Das Gebäude ist an die Fernwärme der KVA Buchs angeschlossen und derzeit leerstehend – ideale Voraussetzungen für eine stilgerechte Sanierung mit Respekt vor der historischen Substanz.
Eine einmalige Gelegenheit, ein kulturhistorisches Schmuckstück an prominenter Lage zu erwerben – für Liebhaber, die Geschichte nicht nur bewundern, sondern auch bewohnen möchten.
Haben wir Ihr Interesse geweckt? Kontaktieren Sie uns für mehr Informationen oder einen Besichtigungstermin!